PEARCE DESIGN PEARCE DESIGN PEARCE DESIGN

3D Architectural Rendering & Visualization | Pearce Design – Florida

  • Home
  • About
  • Services
  • case study
  • Start Your Vision
  • Contact

Browsing CategoryNews

pearce design master plan, addis abba, ethopia

Master Plan

in News on March 15, 2026 March 16, 2026 Share Facebook Twitter Pinterest Email

…

Read More

Exterior house plan render, by pearce design

Exterior Renderings

in News on February 3, 2026 March 16, 2026 Share Facebook Twitter Pinterest Email

…

Read More

modern-luxury-home-exterior-3d-render | pearce design

Web Design

in News on February 3, 2026 March 16, 2026 Share Facebook Twitter Pinterest Email

…

Read More

4k 3d living room cycles render

3D Animation

in News on February 3, 2026 April 13, 2026 Share Facebook Twitter Pinterest Email

…

Read More

Interior Living Room render, by pearce design

Interior Renderings

in News on May 18, 2023 February 3, 2026 Share Facebook Twitter Pinterest Email

…

Read More

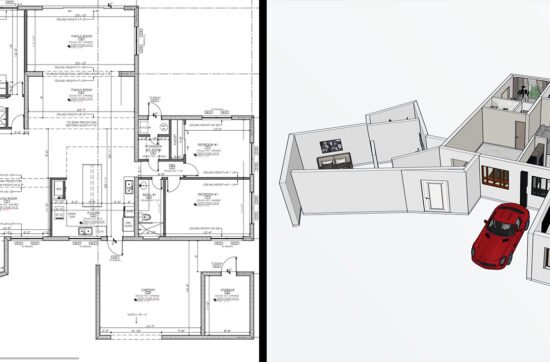
modern-luxury-home-exterior-3d-render | pearce design

2D to 3D Floor Plans

in News on February 3, 2026 March 16, 2026 Share Facebook Twitter Pinterest Email

…

Read More

© 2026 Pearce Design All Right Reserved.