Where Vision Grows

Miami house

Client

Warner Bros Inc.

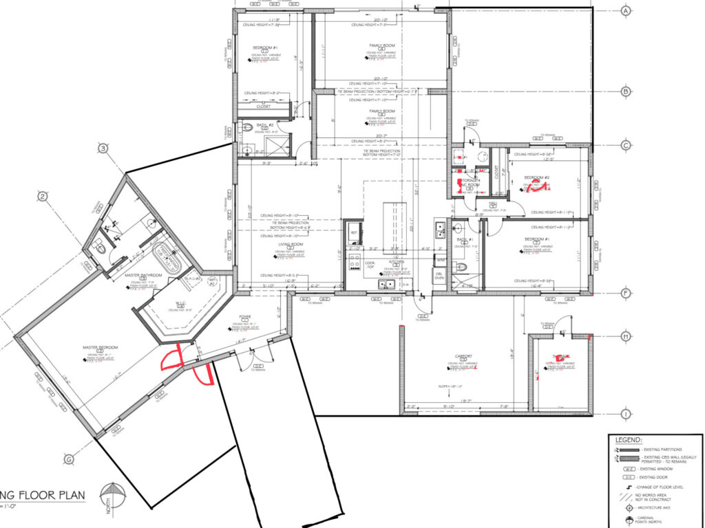
Redesign from floorplans

Service
Date

Jun 2025

— The Idea

By pearce design Architecture

At Pearce Design Architecture, we believe that great design shapes the future, blending creativity, functionality, and sustainability. Our architectural projects reflect our commitment to excellence, innovation, and environmental responsibility. Whether designing residential spaces, commercial buildings, or urban landmarks, we focus on creating structures that enhance both aesthetics and usability.

— We started with

Vision & Concept Development

Every architectural project starts with a strong concept. We collaborate closely with clients to understand their aspirations, needs, and site potential. Our team conducts in-depth research and feasibility studies to develop a unique vision that aligns with modern architectural trends while respecting historical and cultural contexts.

Exterior floor plan renders, by-pearce-design
Modern one-story house color floor plan, featuring backyard with swimming pool.

— The Fundamentals

Sustainable & Eco-Friendly Design

Sustainability is at the core of our architectural approach. We integrate: Energy-efficient materials to reduce carbon footprints Passive design strategies that enhance natural lighting and ventilation Renewable energy solutions, such as solar panels and rainwater harvesting systems Green spaces and biophilic design to promote harmony between built environments and nature.

— Product Design

Functional & Efficient Spatial Planning

The success of an architectural project lies in its spatial organization. We focus on: Optimizing space utilization for maximum functionality Seamless circulation flow for comfort and accessibility Flexible layouts that adapt to evolving needs Zoning and connectivity to enhance user experience From residential layouts to commercial masterplans, our designs prioritize efficiency without compromising aesthetics.

"Explore our innovative architecture"

Arkiz Architecture turned our dream home into reality. Their attention to detail, innovative design, and seamless project management made the entire process stress-free. We couldn't be happier with the result!

James Clark
CEO - Atlas

Working with Arkiz Architecture was a game-changer for our retail space. They perfectly captured our brand identity while creating a highly functional layout. Customers love the design!

Jennifer Dust
HR - Archy CO.

The Arkiz team transformed our outdated home into a modern masterpiece. They respected the original charm while introducing fresh, functional elements. Highly recommend them for renovations!

Adam Hills
CEO - CreativeCo

Arkiz Architecture’s commitment to sustainability impressed us. Their eco-conscious design reduced our energy consumption while maintaining aesthetic appeal. They truly care about the environment.

Jennifer Dust
HR - Archy CO.

— Collaboration

Let's work together.

The plans you refer to will soon be back in our hands. Alderaan? I'm not going to Alderaan. I've got to go home.

CONTACT US

Address

456 Park Avenue, Suite 789 New York, NY 10022 USA

Mail Us

arkiz@gmail.com

Call Us

(212) 555-1234

Working Hours

Monday - Friday : 8:00am - 6:00pm

MISION & VISION

MISION

Turning visionary ideas into architectural masterpieces for modern living environments.

VISION

Blending innovation and tradition to create architecture with timeless appeal.