Master Plan Visualization

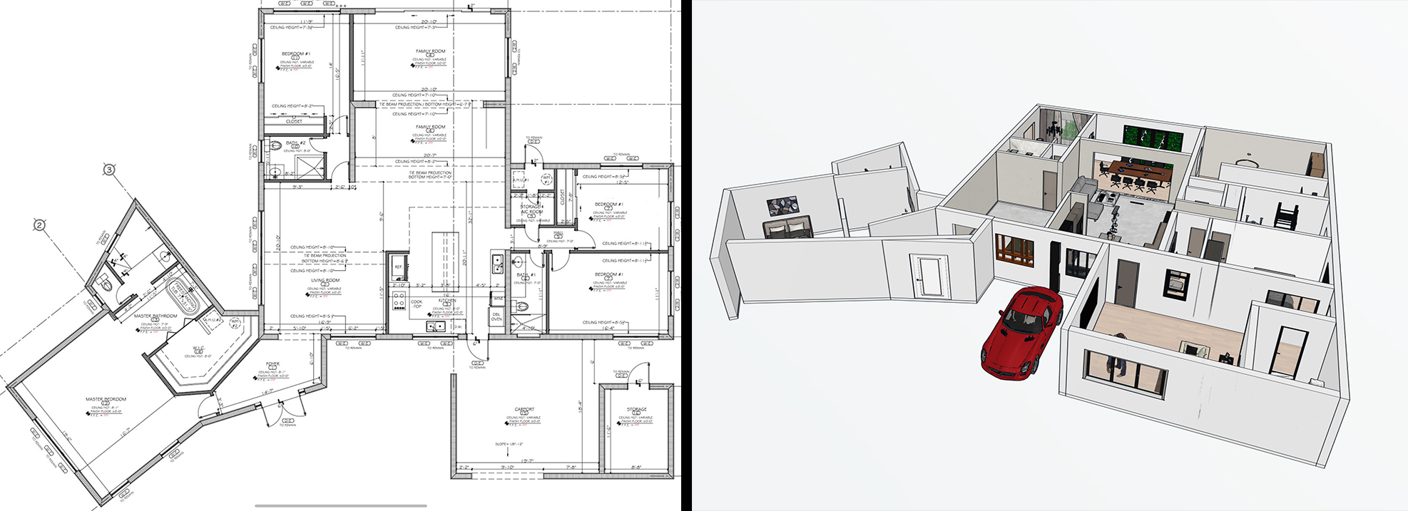
2D and 3D floor plans that communicate spatial relationships clearly — useful for planning, powerful for presentations.

Mixed-Use Sports & Entertainment Master Plan

This master plan visualization presents a mixed-use development in Addis Ababa consisting of a hotel, shopping mall, sports arena, and sports training center. The project was developed using accurate site coordinates and land measurements provided for the location.

Using reference materials and site data, I designed the overall site layout and created the full 3D architectural visualization and animation. The work includes modeling, lighting, and rendering of the buildings, landscape, and circulation areas to present a clear vision of the proposed development.

The final images and animation communicate the scale, organization, and urban presence of the complex within its surrounding environment.

— Collaboration

Let's work together.

PEARCE DESIGN

CONTACT US

Address

Ft. Myers, FL USA

Mail Us

info@pearcedesign.com

Working Hours

Monday - Friday : 8:00am - 6:00pm

MISION & VISION

MISION

Turning visionary ideas into architectural masterpieces for modern living environments.

VISION

Blending innovation and tradition to create architecture with timeless appeal.